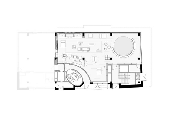
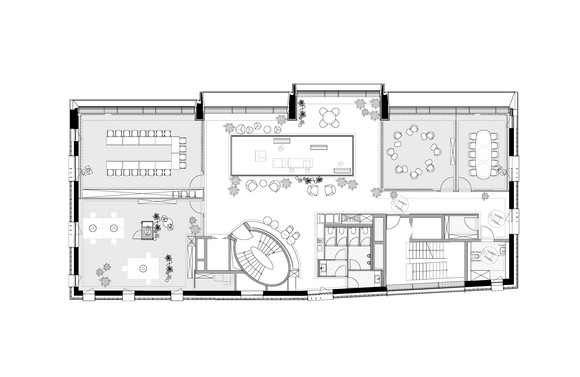
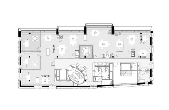
Die täglich geöffnete Tourist-Information „i-Punkt“ im Erdgeschoss wird zum wichtigen Kontaktpunkt für die Gäste der Stadt. Mit zwei Gastronomien im Erdgeschoss und auf dem Dach des Hauses und den öffentlich nutzbaren Räumen in den Arbeitswelten der Stuttgart-Marketing GmbH schafft das „Haus des Tourismus“ aber auch vielfältige Angebote für die Stuttgarter selbst. Es ist damit Startpunkt und Treffpunkt, adressiert verschiedene Nutzergruppen und schafft so einen neuen lebendigen Ort mitten im Zentrum der Stadt.

















































